المنتجات
المنتجات
اتصل بنا
وصف المنتج
تم تصميم هذا النوع من الحاويات بفتحات أو هياكل للرافعة الشوكية، مما يسهل على الرافعة الشوكية إدخال الشوكات مباشرة للتعامل معها، مما يبسط عملية التحميل والتفريغ؛

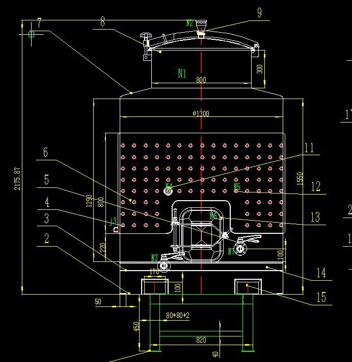
1. جيوب الرافعة الشوكية المتكاملة (الميزة غير القابلة للتفاوض)
هذه هي السمة المميزة. كل خزان نبيذ بالرافعة الشوكية يحتوي على جيوب رافعة شوكية من الفولاذ المقوى (عادةً 2-4 جيوب، موضوعة بشكل متماثل على قاعدة الخزان أو الجدران الجانبية السفلية). تم تصميم هذه الجيوب لتحمل الوزن الكامل للخزان بالإضافة إلى النبيذ بداخله (يمكن أن يزن خزان سعة 500 جالون ممتلئ أكثر من 4500 رطل!). الأهم من ذلك، أن الجيوب تكون مستوية أو مغمورة - فهي لا تبرز، لذلك لن يعلق الخزان على الرفوف أو الخراطيم أو المعدات الأخرى عند نقله. نحن لا نستخدم الأقواس الخارجية هنا - فهي تنكسر بسهولة تحت الأحمال الثقيلة.
2. تصميم قابل للتراص (لتوفير مساحة التخزين)
معظم خزانات النبيذ بالرافعة الشوكية قابلة للتراص عندما تكون فارغة (وأحيانًا عندما تكون ممتلئة جزئيًا، مع حدود وزن صارمة). يحتوي الجزء العلوي من الخزان على حافة مقواة تناسب قاعدة خزان آخر تمامًا، بحيث يمكنك تكديس 2-3 خزانات باستخدام الرافعة الشوكية. هذا يغير قواعد اللعبة بالنسبة للمصانع الصغيرة والمتوسطة - لا تحتاج إلى مستودع ضخم لتخزين الخزانات الفارغة خلال المواسم غير النشطة. نصيحة احترافية: تحقق دائمًا من تصنيف التراص من الشركة المصنعة - لا تتراص الخزانات الممتلئة إلا إذا كانت مصنفة صراحةً لذلك (معظمها ليس كذلك، لأسباب تتعلق بالسلامة).
3. بناء متين وخفيف الوزن (متوازن للتعامل مع الرافعة الشوكية)
تصنع هذه الخزانات دائمًا تقريبًا من الفولاذ المقاوم للصدأ 304 أو 316 (مناسب للأغذية، مقاوم للتآكل، مثالي للنبيذ الحمضي). ولكن يتم موازنة سمك الفولاذ بعناية: سميك بما يكفي لحمل النبيذ دون تشوه، ورفيع بما يكفي لتحريكه بواسطة رافعة شوكية قياسية في المستودع (لا حاجة إلى رافعة شوكية صناعية ثقيلة). كما يتم تقوية القاعدة بإطار فولاذي صلب - مما يمنع الخزان من الانحناء أو التشقق عند رفعه بواسطة الرافعة الشوكية، حتى عندما يكون ممتلئًا.
4. خيارات حجم متنقلة (مصممة لسهولة مناورة الرافعة الشوكية)
تأتي خزانات النبيذ بالرافعة الشوكية بأحجام نمطية قابلة للمناورة - تتراوح عادةً من 50 جالون (لاختبار الدُفعات الصغيرة) حتى 1000 جالون (للإنتاج الكمي للدفعات الصغيرة). لا يتم صنعها بحجم أكبر من ذلك، لأن الخزانات الأكبر ستكون عريضة/طويلة جدًا بحيث لا يمكن للرافعة الشوكية تحريكها بأمان في مصنع النبيذ (حيث تكون الممرات ضيقة غالبًا، مع أسقف منخفضة ومنعطفات ضيقة). تتيح هذه القدرة على التنقل نقل الخزان مباشرة من المكبس إلى منطقة التخمير، ثم إلى غرفة الشيخوخة، وأخيرًا إلى خط التعبئة - دون الحاجة إلى ضخ النبيذ بين خزانات ثابتة عدة مرات (مما يقلل من خطر الأكسدة!).
5. نقاط وصول صديقة للرافعة الشوكية (لتسهيل مهام صنع النبيذ)
يتم وضع الصمامات ومنافذ أخذ العينات والفتحات (أبواب الوصول) جميعها على ارتفاع يسهل الوصول إليه عندما يتم نقل الخزان بواسطة الرافعة الشوكية. على سبيل المثال، يكون صمام التصريف عادةً على الجانب السفلي (ولكن ليس منخفضًا جدًا بحيث يصطدم بشوكات الرافعة الشوكية)، ويكون منفذ أخذ العينات على ارتفاع الصدر - بحيث لا تضطر إلى تسلق سلم أو خفض الخزان لأخذ عينة من النبيذ. تحتوي بعض الموديلات حتى على مؤشر ارتفاع قابل للتعديل بواسطة الرافعة الشوكية - بحيث يمكن للمشغل رفع الخزان إلى الارتفاع المطلوب بالضبط للاتصال بالخراطيم أو خطوط التعبئة، دون الحاجة إلى حوامل إضافية.
6. أسطح خارجية مقاومة للصدمات (للتعامل في المستودعات)
لنكن واقعيين - الرافعات الشوكية ليست دائمًا مثالية. تحتوي هذه الخزانات على واقيات زوايا مقواة ونهايات مقاومة للخدوش على الفولاذ. كما يتم تبطين جيوب الرافعة الشوكية بمطاط سميك أو بلاستيك لمنع شوكات الرافعة الشوكية من خدش الخزان (يمكن أن تؤدي علامات الخدش إلى التآكل بمرور الوقت، مما يفسد النبيذ). هذا يجعلها أكثر متانة بكثير من خزانات النبيذ العادية غير المخصصة للرافعة الشوكية، والتي تتلف بسهولة إذا حاولت تحريكها بمعدات ثقيلة.
7. متوافقة مع ملحقات مصانع النبيذ القياسية (لا حاجة إلى أدوات خاصة)
تعمل خزانات النبيذ بالرافعة الشوكية مع جميع معدات مصنع النبيذ القياسية التي لديك بالفعل: سترات تبريد، عناصر تسخين، أذرع تصفية، وسدادات. الفرق الوحيد هو أنه يمكنك نقل الخزان مع كل هذه الملحقات المرفقة (طالما كانت مؤمنة) باستخدام الرافعة الشوكية. يوفر هذا الكثير من الوقت - لا تحتاج إلى فصل وإعادة توصيل الخراطيم في كل مرة تنقل فيها الخزان. على سبيل المثال، يمكنك تخمير النبيذ في الخزان، وتركيب سترة تبريد، ونقله إلى الغرفة الباردة باستخدام الرافعة الشوكية، وتركه ليشيخ - كل ذلك دون لمس النبيذ بداخله.
احصل على عرض سعر
التعبئة والشحن
المنتجات الموصى بها